更新日:2026年3月6日

ここから本文です。

糠野目第二アパート

【住戸改善事例】糠野目第二アパートでは住戸改善工事を実施しました!(2戸)

糠野目第二 外観

 

 

 

 

 

糠野目第二 風呂糠野目第二 押入糠野目第二 洗面台糠野目第二 トイレ

 

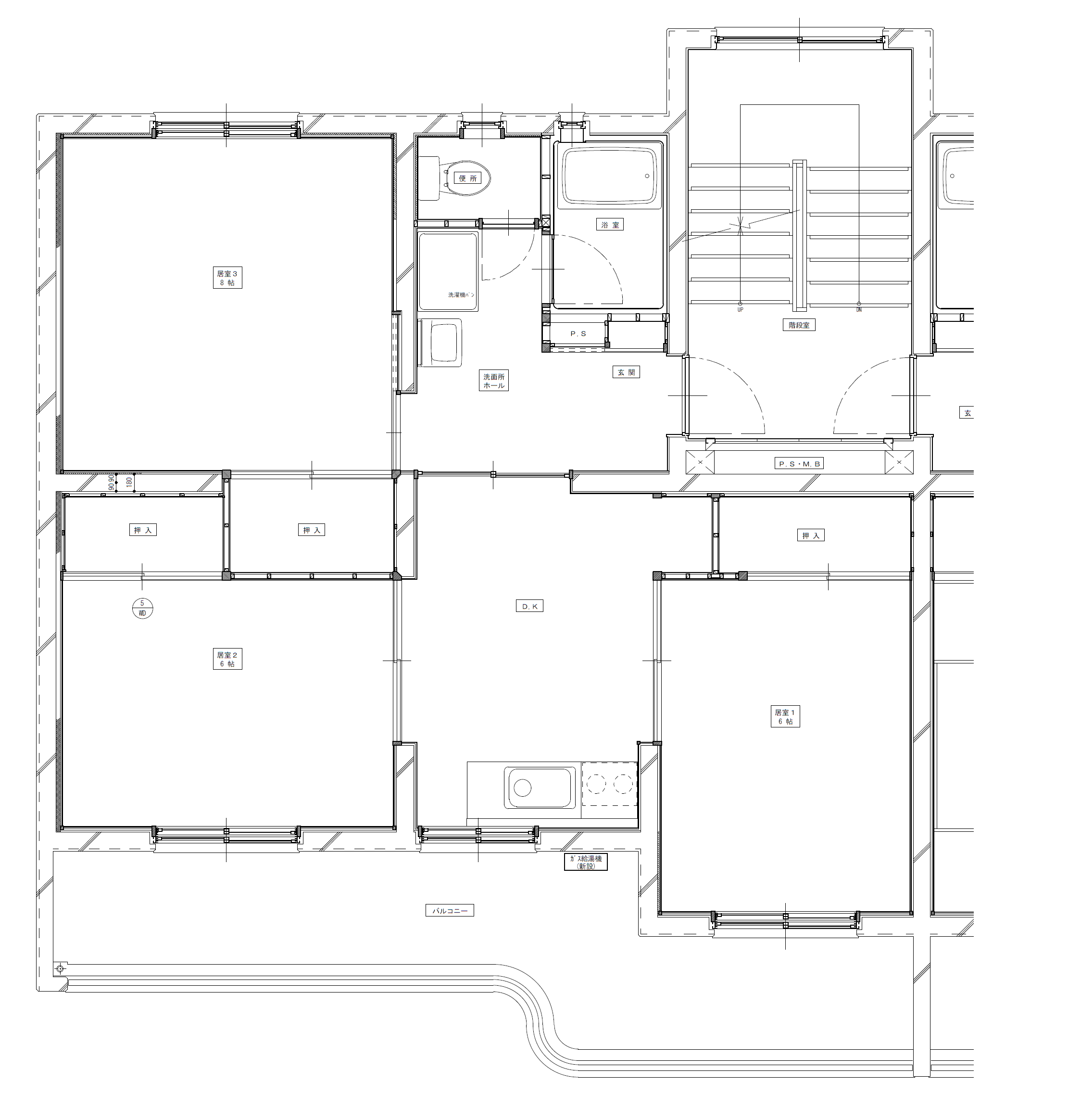
間取り(住戸改善後)

糠野目第二 平面

工事概要

【工事完了年】令和6年3月

【工事対象】糠野目第二アパート(2戸)

【工事内容】

  • 畳からフローリングへ変更し、維持管理を容易にしました。
  • ユニットバスの浴槽、台所、洗面台を更新し、給湯設備(浴槽、台所、洗面台)を新設しました。
  • 福祉対応として、トイレに手すりを設置しています。

基本情報

団地名 糠野目第二アパート 棟数 1棟
住所 高畠町福沢南21-2 階数 4階
設備関係 ガス設備:LPガス 浴室:給湯設備(改修住戸のみ) 駐車場:有 総戸数 24戸

現在募集している住戸のお問合せ

現在募集している住戸については、こちらをご確認ください。

お問い合わせ

県土整備部建築住宅課住宅対策担当

住所:〒990-8570 山形市松波二丁目8番1号

電話番号:023-630-2636

ファックス番号:023-630-2639